Separate Behandlungsräume für COVID-19 Verdachtsfälle

ELA Container Corona Testzentrum

Sie benötigen zusätzlichen Raum, um Patientinnen und Patienten auf das Coronavirus zu testen? Dann wenden Sie sich an uns. ELA Container stellt Ihnen auf Anfrage mobile Containeranlagen, z.B. um die Bevölkerung auf eine Infizierung mit dem Virus zu testen. Wir haben bereits einige „Corona-Testzentren“ in unserer Heimatregion aufgestellt und bieten allen Behörden und Gesundheitseinrichtungen unsere Container an. Sie können schnell, flexibel und an jedem Ort aufgestellt werden.

Vorteile
Separater Personaleingang
Kontaktloses Einschalten von Licht durch Bewegungsmelder
Personenschleuse
Sofort einsatzbereit & schnell geliefert
Überall aufstellbar
Innenansicht ausgestatteter Besprechungsraum Gesundheitswesen

ELA Containerräume für vertrauliche Gespräche

Die Beratungsräume einer Praxis müssen Schutz und Vertrauen garantieren – nur so kann ein offenes und ehrliches Gespräch zwischen Arzt und Patient stattfinden. Daher legt ELA Container besonderen Wert auf ein ansprechendes Raumgefühl in den Beratungsräumen von mobilen Arztpraxen.

Mehr Details
Container Testzentrum

ELA Container als Corona-Testzentrum

Aufgrund unserer bisherigen Erfahrung in der Auslieferung von Corona-Testzentren schlagen wir Ihnen eine Containeranlage aus zwei ELA-Premiumcontainern vor. Auf insgesamt 36m² erhalten Sie alle funktionellen Gegebenheiten, die sie benötigen: Von unterschiedlichen Funktionsräumen über Hygieneeinrichtungen wie WC und Waschbecken bis hin zu kompletter Klimatisierung.

Mehr Details
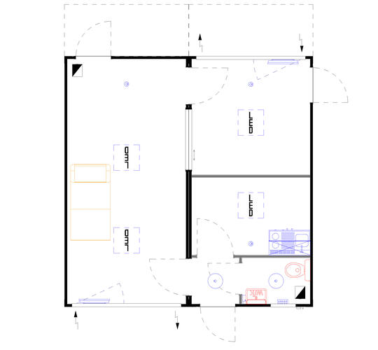
Grundriss Corona Testzentrum ELA Container

Praktischer Grundriss vom Testzentrum

Der Grundriss der Containeranlage ist funktional und praktisch durchdacht. So finden in der Anlage insgesamt drei Räume ihren Platz. Der Untersuchungsraum kann durch extra eingebaute Türen mit Windfang jeweils betreten und verlassen werden. Ein Arbeitszimmer für das Fachpersonal grenzt an den Untersuchungsraum an und ist durch eine Tür von diesem getrennt. Bevor die Patienten getestet werden, müssen Sie sich an einem externen Schalter anmelden. Alle Räume sind unabhängig voneinander begehbar.

🔎 Grundriss ansehen

Melden Sie sich bei uns für weitere Informationen. Gern beraten wir Sie und unterbreiten Ihnen ein individualisiertes Angebot. 

 

Jetzt Anfragen

 

Datenblatt downloaden

Hotline
Fachberater vor Ort